
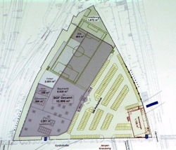
Zweifel an städtebaulicher Qualität und ungelöste Verkehrsprobleme

Zweifel an städtebaulicher Qualität und ungelöste Verkehrsprobleme
Homepage SPD Tempelhof-Schöneberg

Alle Informationen zu Ihrer Landtagsabgeordneten Melanie Kühnemann-Grunow finden Sie hier .

Alle Informationen zu Ihrem Bezirksverordneten Jürgen Swobodzinski finden Sie hier .
Wer die SPD Lichtenrade-Marienfelde unterstützen möchte kann sich natürlich jederzeit aktiv einbringen. Wir freuen uns aber auch über jeden Euro, der uns bei unserer Parteiarbeit hilft.
Wir bestreiten unsere politische Arbeit mit ehrenamtlichen Mitgliedern und deren Beiträgen. Zusätzliche Spenden fließen ausschließlich in unserer politische Arbeit. Damit finanzieren wir Veranstaltungen, Materialien, und stellen Informationen bereit, um politische Teilhabe für alle Menschen in Lichtenrade und Marienfelde zu ermöglichen.
Spenden können auf das Konto
SPD-LV Berlin, Abteilung Lichtenrade
IBAN: DE52 1009 0000 2454 2380 04
BIC: BEVODEBBXXX
bei Angabe des Namen und der Adresse wird selbstverständlich eine Spendenquittung ausgestellt.